$550,000
1,264
SQ FT
$435
SQ/FT
1500 Bella Vista Drive
@ Walters Rd - Suisun 10, Suisun City
- 3 Bed
- 2 Bath
- 2 Park
- 1,264 sqft
- Suisun City
-
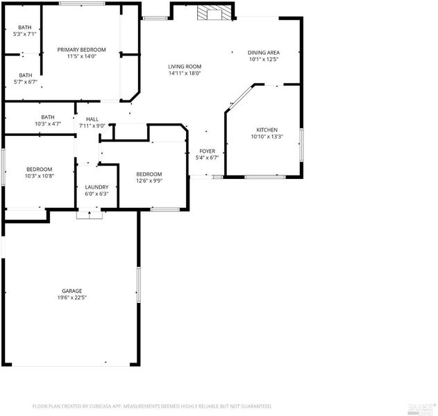
Welcome to 1500 Bella Vista Dr in Suisun City- an incredible opportunity to own a well-maintained home on a spacious corner lot with standout features inside and out. This 3-bedroom, 2-bath home offers approximately 1,264 sq ft of comfortable living space, perfectly complemented by a generous 9,118 sq foot lot with possible RV or boat parking. Enjoy energy efficiency and modern upgrades with owned solar, a newer HVAC system installed in 2019, and a tankless water heater for on-demand convenience. The backyard is built for entertaining and relaxation, featuring an above-ground pool, plenty of space to host, and a Tuff Shed for additional storage. A newer fence installed in 2018 adds both privacy and peace of mind. Whether you're looking for functionality, outdoor space, or room to expand and make it your own, this property offers incredible versatility. Don't miss your chance to own this move-in ready home that is minutes to the Travis AFB main gate, shopping, and freeways!
- Days on Market
- 2 days
- Current Status
- Active
- Original Price
- $550,000
- List Price
- $550,000
- On Market Date
- Apr 10, 2026
- Property Type
- Single Family Residence
- Area
- Suisun 10
- Zip Code
- 94585
- MLS ID
- 326030424
- APN
- 0174-292-010
- Year Built
- 1995
- Stories in Building
- Unavailable
- Possession
- Close Of Escrow
- Data Source
- BAREIS
- Origin MLS System
Dan O. Root Elementary School
Public K-6 Elementary, Yr Round
Students: 847 Distance: 0.5mi
Tolenas Elementary School
Public K-5 Elementary
Students: 414 Distance: 0.8mi
Suisun Elementary School
Public K-5 Elementary
Students: 517 Distance: 1.4mi
Crescent Elementary School
Public K-5 Elementary, Yr Round
Students: 607 Distance: 1.6mi
Solano County Community School
Public 7-12 Opportunity Community, Yr Round
Students: 44 Distance: 1.6mi
Grange Middle School
Public 6-8 Middle
Students: 905 Distance: 1.7mi
- Bed
- 3
- Bath
- 2
- Parking
- 2
- Attached
- SQ FT
- 1,264
- SQ FT Source
- Assessor Auto-Fill
- Lot SQ FT
- 9,117.0
- Lot Acres
- 0.2093 Acres
- Pool Info
- Above Ground
- Cooling
- Central
- Fire Place
- Wood Burning
- Heating
- Central
- Laundry
- Inside Room
- Main Level
- Bedroom(s), Family Room, Full Bath(s), Garage, Kitchen
- Possession
- Close Of Escrow
- Basement
- None
- Fee
- $0
MLS and other Information regarding properties for sale as shown in Theo have been obtained from various sources such as sellers, public records, agents and other third parties. This information may relate to the condition of the property, permitted or unpermitted uses, zoning, square footage, lot size/acreage or other matters affecting value or desirability. Unless otherwise indicated in writing, neither brokers, agents nor Theo have verified, or will verify, such information. If any such information is important to buyer in determining whether to buy, the price to pay or intended use of the property, buyer is urged to conduct their own investigation with qualified professionals, satisfy themselves with respect to that information, and to rely solely on the results of that investigation.
School data provided by GreatSchools. School service boundaries are intended to be used as reference only. To verify enrollment eligibility for a property, contact the school directly.



































